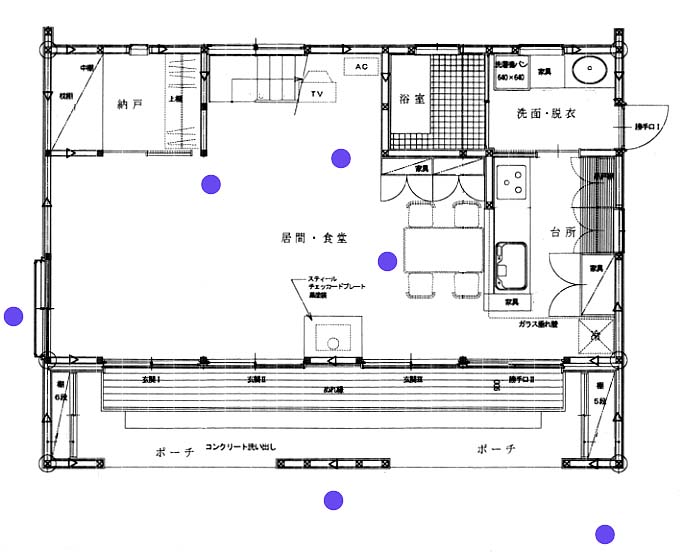
<UZ氏邸一階平面図> 図のをクリックすると写真が見られます。

二階平面図