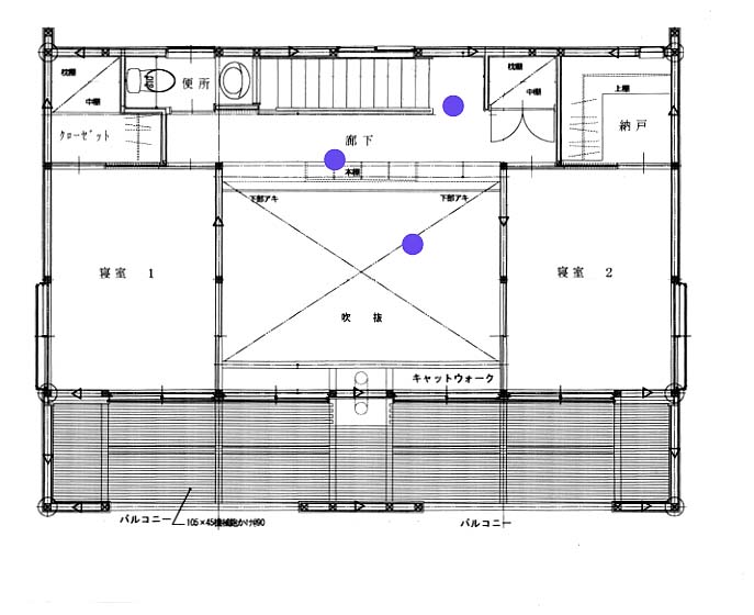
<UZ氏邸二階平面図> 図のをクリックすると写真が見られます。

一階平面図